property image
property image
Listing ID L819371
Address New Rochelle, NY 10801
Price $49
Available Contact Us
Acres
Bedroom(s)
Bathroom(s)
Year Built
Est. Sq. Footage
Complex Name
Furnished No
Pets No
Short Term No
Heat
Air Cond

Remarks

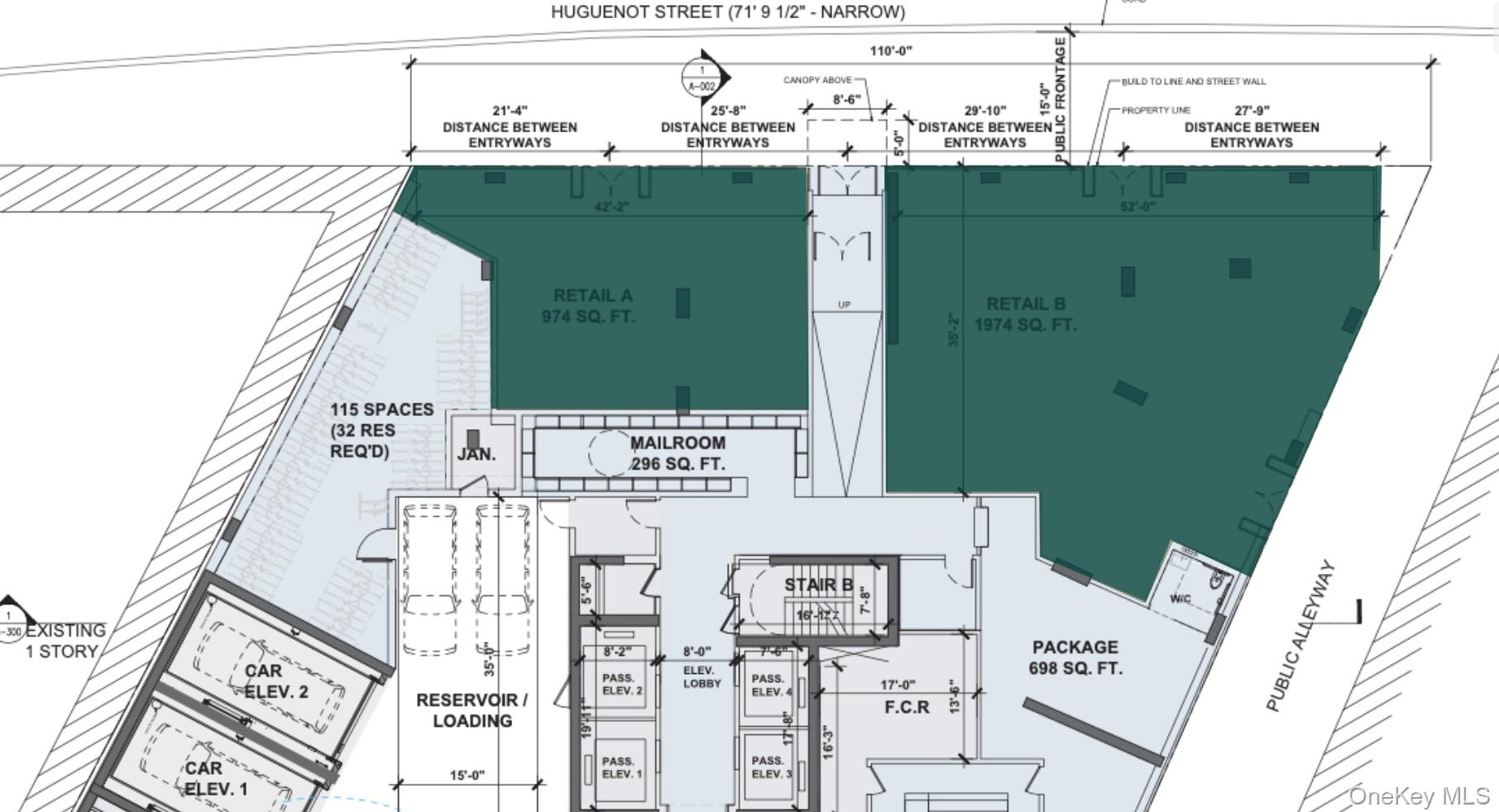
316 Huguenot Avenue at Westchester Place, a 27-story luxury building featuring 315 residential units and two ground-floor retail suites in the heart of New Rochelle's vibrant downtown. With frontage along Huguenot Avenue, your business will enjoy a prominent location with visibility to the New Rochelle Metro-North Station and exposure to over 18,000 cars passing daily. Estimated occupancy Q2 2025. The retail suites feature open-concept layouts with minimal columns, offering maximum flexibility for tenant buildout. Surrounded by over 3,500 new residential units within a two-block radius and conveniently located near municipal parking, the space is ideal for a café, boutique fitness studio, specialty market, or wellness service provider to serve as an amenity for residents and the wider community. Tenants may also apply for grants through the New Rochelle Tenant Improvement Fund to help launch or enhance retail businesses in this dynamic urban center.

Amenities

Pets Allowed,

Request a Showing - Make an Appointment - More Information

Please fill out the form below to request a showing or make an appointment to view this property.